Documentos
Verbas
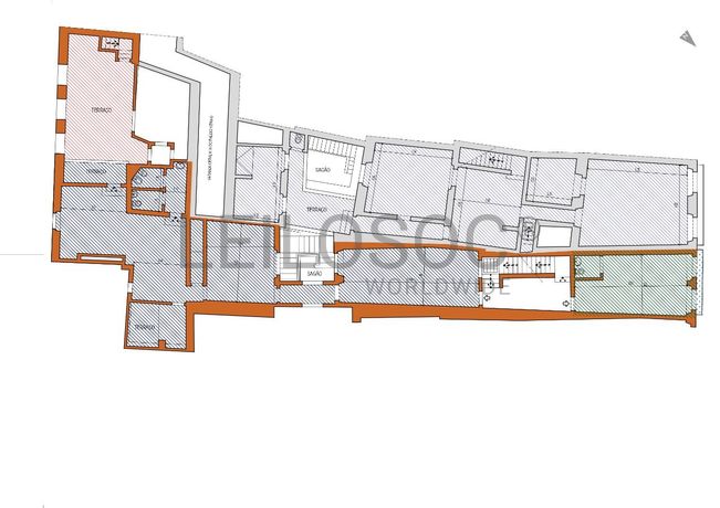
Descrição
Edifício com 5 Pisos, localizado em pleno centro histórico de Évora.
Composto por 9 unidades de utilização independente (3 devolutas e 6 arrendadas) com rendimento €1.200,00/mês (aproximadamente).
Área Implantação de 264m² · Área Bruta de Construção de 990m²
Inserido na zona nobre da cidade de Évora, na praça central com estatuto de Monumento Nacional desde 1910. A sua localização, no caminho das arcadas, confere-lhe uma característica privilegiada, quer pela arquitetura, quer pela sombra que propicia nos meses de verão, convidando à utilização do espaço exterior.
Notas Informativas:
a) Edifício não sujeito a licença de utilização por se tratar de construção anterior a 1951, devidamente atestado por certidão camarária;
b) Unidades devolutas com potencial de rendimento imediato;
c) Todas as unidades de utilização dispõem de certificado energético;
d) Edifício em propriedade total, com possibilidade de conversão total ou parcial das unidades de utilização independente.
Composto por 9 unidades de utilização independente (3 devolutas e 6 arrendadas) com rendimento €1.200,00/mês (aproximadamente).
Área Implantação de 264m² · Área Bruta de Construção de 990m²
Inserido na zona nobre da cidade de Évora, na praça central com estatuto de Monumento Nacional desde 1910. A sua localização, no caminho das arcadas, confere-lhe uma característica privilegiada, quer pela arquitetura, quer pela sombra que propicia nos meses de verão, convidando à utilização do espaço exterior.
Notas Informativas:
a) Edifício não sujeito a licença de utilização por se tratar de construção anterior a 1951, devidamente atestado por certidão camarária;
b) Unidades devolutas com potencial de rendimento imediato;
c) Todas as unidades de utilização dispõem de certificado energético;
d) Edifício em propriedade total, com possibilidade de conversão total ou parcial das unidades de utilização independente.
Detalhes
Lote Número
2
Referência
126269
Processo
DMI-10/2023
Entidade
HP - GOLDEN
Id do leilão
17187
Id do lote
126269
Referência: 126269 / Lote Número: 2
Edifício Histórico · Évora
---
Valor Mínimo
---
Valor base
920.000,00 €
Localização
Évora
Praça do Giraldo nº.s 24, 25, 26 a 28 e Rua Alcárcova de Cima n.º 9, Évora, 7000-472
Métodos de pagamento
Informação do vendedor
0
0
0
Rita Costa





















